ID CP2549685

De Gaulle Residence/Arcul de Triumf

ID CP2549685

1,370,000 €

Apartament cu 4 camere de vânzare
Arcul de Triumf, Bucuresti
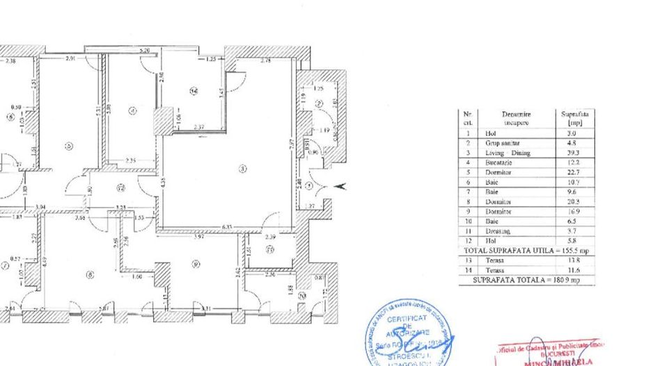
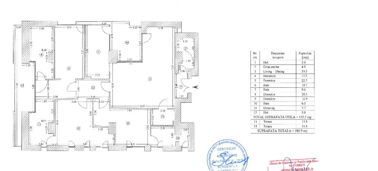
180 mp
2023

Imobiliaretvg va ofera oportunitatea de a cumpara un apartament unic intr-o zona deosebita, fiind localizat intre Arcul de Triumf si Aviatorilor, fix langa ambasada Peru. Acest imobil poate avea si destinatie de birouri fiind localizat in zona centrala cu acces bine definit.

Aceeasi configuratie si pret mai este disponibila si la etajul 5.

Pentru orice informatii sau vizite va stam la dispozitie.

www.imobiliaretvg.ro

________

Imobiliaretvg offers you the opportunity to buy a unique apartment in a special area, being located between the Arch of Triumph and Aviatorilor, right next to the Peruvian embassy. This building can also be used for offices, being located in the central area with well-defined access.

The same configuration and price are also available on the 5th floor.

For any information or visits we are at your disposal.

www.imobiliaretvg.ro

Citește mai mult

  • Tip apartament
    Apartament
  • Compartimentare
    Decomandat
  • Număr camere
    4
  • Etaj
    4
  • Suprafață utilă
    180 mp
  • Disponibilitate
    Imediat
  • Confort
    Lux
  • Stare interior
    Finisat modern
  • Imobil
    Bloc de apart.
  • An construcție
    2023
  • Construcție nouă
    Da

Facilități

Apă
Canalizare
CATV
Curent
Gaz
Iluminat stradal
Internet
Mijloace de transport în comun
Străzi asfaltate
Telefon
Daniel Iordan

0720100339


Solicită chiar acum o vizionare
Telefon
Sună acum Solicită vizionare
Necesare:

Site-ul nu poate funcționa corect fără aceste cookie-uri. Vezi cookie-urile

Statistică:

Strângem statistici anonime despre voi, vizitatorii unici, pentru a vă îmbunătăți experiența dumneavoastră. Vezi cookie-urile

Marketing:

Pentru a ne promova mai eficient serviciile noastre, folosim cookies pentru a vă identifica și a vă oferi proprietăți și servicii personalizate. Vezi cookie-urile

Acest site folosește cookies, află detalii. Alege ce tipuri de cookies dorești să permitem: